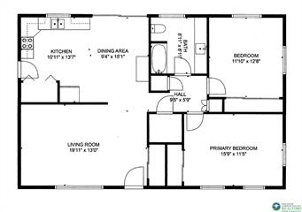
280 South 9th Street, Lehighton, Pennsylvania, 18235

This listing has been sold or is no longer active